werkvoorbereiding &werktekeningen
- I Lauwereijs

- 9 apr 2016
- 1 minuten om te lezen
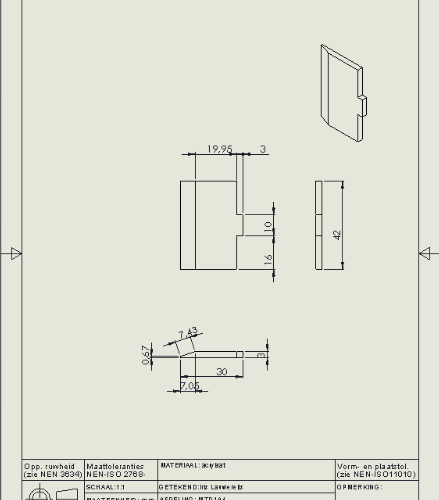
Vorige week en deze week hebben we ons bezig gehouden met de werkvoorbereiding en werktekeningen van ons project; de muizenval. Door een werkvoorbereiding te maken, weet je hoe lang je over het produceren van je muizenval gaat doen. Op een werktekening komen de aparte delen van je product te staan. Met de werktekening zou je het onderdeel door iedereen kunnen laten maken. Klik hier voor mijn werkvoorbereiding. De werktekeningen vind je hieronder in een galerij.






































Opmerkingen